▶︎Local history
目黒駅から徒歩1分、JR西口駅を出て目黒川のほうへ権之助坂を下っていき、途中左手に曲がったゆるやかな坂の途中に物件がある。坂の途中と駅前合わせ銀行が4行と金融機関が充実している。物件がある通りの一本駅寄りの通りには時間貸し駐車場がある。また、駅からは中目黒方面、祐天寺・三軒茶屋方面のバスが出ており、三茶方面は一時間に4〜6本と本数も多い。
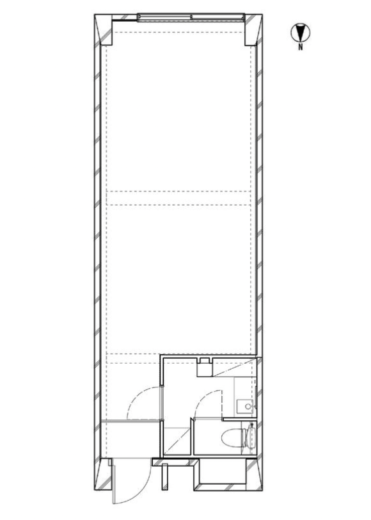
▶︎Space
南向き10坪の長方形の物件。1階ではあるが、エントランスまで階段で数段上がり、目の前に高い建物が隣接していないため、扉をあけた瞬間に光が入ってきて明るい。コンパクトかつシンプルながら、天井のスケルトンと木目の相性が抜群におしゃれだ。入り口右手にあるウッドBOXな空間は水回りがまとまっており、トイレとシンクがある。
▶︎writers comment
扉を開けた瞬間かわいい!となりました。スケルトンのシルバー×床・水回り空間のウッドなテイストの組み合わせは間違いなくかわいいですね。南向きでバルコニーの奥行きも広く、落ち着いた時間がゆったりと流れています。通いたくなるオフィスです。1階表記ではありますが、マンションエントランスまでは数段の階段がありますので、内見時にご確認ください。
▶︎ご利用用途
事務所利用:ご相談可能
美容室/サロン:不可(予約制含む)
スタジオ:不可
物販:不可
この物件へのお問合せ
(個別相談・感性の合う物件ご提案いたします)
https://skeleton-office.tokyo/contact-rental/
スケルトンオフィスづくりもお手伝いしてます
https://sinca.co.jp/renovation-office/
スケルトンオフィス東京ブログ
https://skeleton-office.tokyo/blog/











