writers comment
Syncs Kojimachi Bldg 、2-3階の店舗区画をご紹介します。
ただいま成約キャンペーン中です
敷金0円・礼金0円・償却0円 保証会社1ヶ月分費用負担あり
3月末までに入居でフリーレント3ヶ月
【価格改定区画】
2階 賃料62.7万→46万 共益費3.3万(税込)
3階 賃料58.3万→47万 共益費3.3万(税込)
4階 賃料53.9万→48万 共益費3.3万(税込)
美容室・ネイルサロン・アイラッシュやエステなどなどお探しの方におすすめです。
2.3階はガスが通っております。
ところで、みなさまは麹町と聞くと、どんなイメージを浮かべますか?
やはり官庁や企業のビルが立ち並ぶ、オフィス街のイメージが強いでしょうか。
そのような堅そうな企業が多い中でスタイリッシュなオフィス物件です。
ちなみに、こちらの裏手には番長エリアという高級住宅街がございます。皇居の近くということで由緒正しいエリアの名残もあり、地盤もしっかりしていると言われてるエリアです。
1階の区画から、さらに空間がぐっと広がった約18坪の区画です。
写真は2階部分ですが、低階であることを忘れてしまうくらいの十分な明るさです..!
それもそのはず、南西向きの2面採光のため、日中通して光が入ってきます。
眩しすぎる!というときはなんと、リモコン操作で全面ロールカーテンが降りてきます。これはすごい!
内装は床がモルタル、壁は白塗りがされたマットな質感が特徴で、スタイリッシュさが際立った空間。
天井は窓側のみ貼られており、部屋の奥側からは抜けています。窓は全ての面がガラス張りのため、天井が貼られていても開放感は健全なままです。
外壁がカーテンウォールを存分に楽しんで頂ける仕上げで外からの視認性も高いため、路面ではないにしても、道ゆく人へのアプローチがしやすい区画です。
スタイリッシュ溢れる空間をそのまま生かせるとしたら、ピラティス、ヨガ、ネイルサロン、エステ、ショールームや画廊などを検討している方にもおすすめしたいです。
そのままは入れる空間だからこそ内装工事を最低限に使ってほしいですが、もちろん内装の変更は可能です。
美容室・ネイルサロン・アイラッシュやエステなどなどお探しの方におすすめです。
2.3階はガスが通っております。
1階とはまた違った魅力がある2階、3階の区画も、見逃すべからずです!
ほかの区画も気になる方はこちらへ🔽

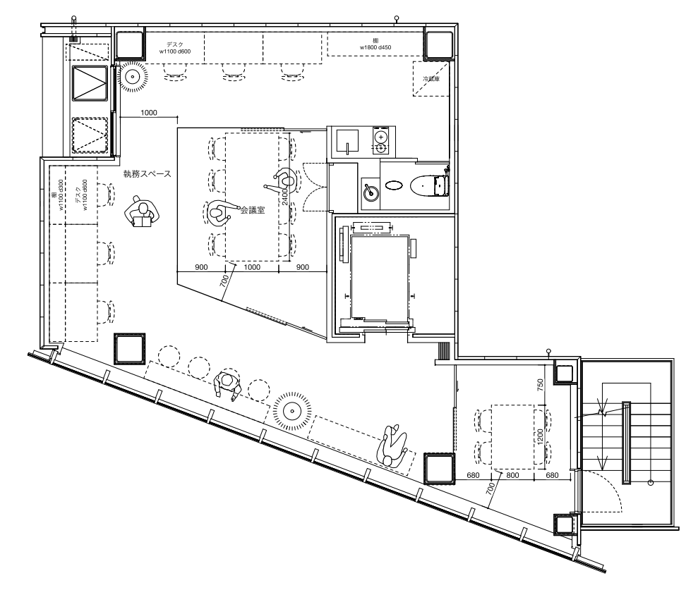
6名の固定席、4名分のフリーアドレス、4名用、8名用の会議室が入ったレイアウト。
窓からの抜け感と働く人たちのスペースが確保されたレイアウト。

7名の固定席、3名分のフリーアドレス、8名用の会議室、リフレッシュルームが入ったレイアウト。
コンパクトな空間で使いやすいレイアウト。
Normcore salon ~究極のシンプルなサロンスペース~
Normcoreとは「究極のシンプル」Normal(標準)とHardcore(ハードコア)の2つを足して作られたファッション造語。
ノームコアは、気取らないシンプルな服装を特徴としたユニセックスなファッショントレンド。
Syncs kojimachi Bldgもシンプルなコンクリート打ちっぱなし仕上げの空間に、ダクトレールが設置されている。
好きな家具を持ち込み、照明をつけて、究極のシンプルなサロンスペースとして空間を使って頂ける空間。










