writers comment
Syncs Kojimachi bldg、上階4階から13階の区画のご紹介です!
ただいまキャンペーン中です
敷金0円・礼金0円・償却0円 保証会社1ヶ月分費用負担あり
3月末までに入居でフリーレント3ヶ月
【価格改定区画】
2階 賃料62.7万→46万 共益費3.3万(税込)
3階 賃料58.3万→47万 共益費3.3万(税込)
4階 賃料53.9万→48万 共益費3.3万(税込)
ところで、みなさまは麹町と聞くと、どんなイメージを浮かべますか?
やはり官庁や企業のビルが立ち並ぶ、オフィス街のイメージが強いでしょうか。
そのような堅そうな企業が多い中でスタイリッシュなオフィス物件です。
居抜きオフィスを借りるよりもあなたのセンスで家具を持ち込めば
セットアップオフィスよりも、デザイナーズオフィスよりもステキなオフィス空間が完成します。
こちらの建物も、もちろんオフィス大歓迎!ですが、
このスタイリッシュ溢れる空間をそのまま生かせるとしたら、
ピラティス、ヨガ、ネイルサロン、エステ、ショールームや画廊などを検討している方にもおすすめしたいです。
そのままは入れる空間だからこそ
内装工事を最低限に使ってほしいと思っておりますが、もちろん内装の変更は可能です。
オフィス街の街と高級住宅地が混在するエリアだからこそ、そこにオフィスではないものを構える。
そうすれば麹町に憩いの場が生まれると思います。
オフィスとして使うとしたら、そんなに悩まずにご利用頂けそうです。
例えばエレベーターから降りて左手には来客スペースを設けるのはどうでしょうか。右手の窓側にはテーブルをくっつけて、景色を眺めながら作業や休憩スペースとして使ったり・・妄想が膨らみますね。
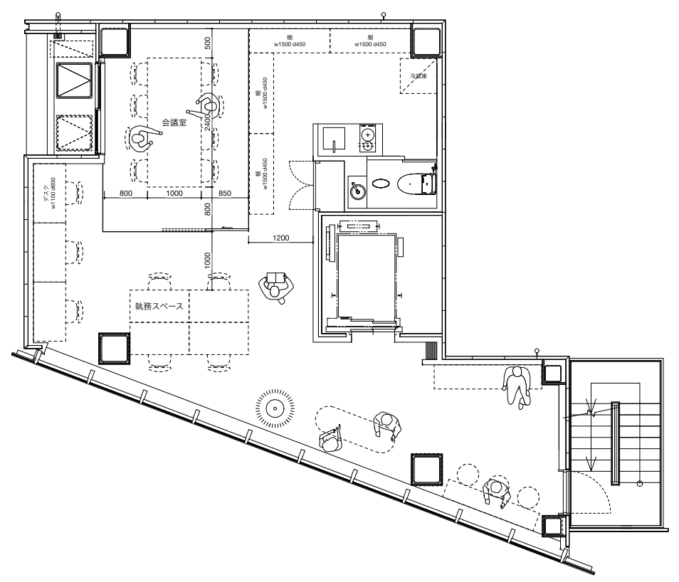
そして区画の奥は執務スペース。最大12名ほどは十分入られる空間です。
~採用に困っている企業、必見~
このSyncs kojimachi に移転して採用募集を掲載するだけで採用件数が増えると思います。
実際に弊社がスケルトンオフィスを作って移転してから採用には困りません。
ご興味がある方はご相談ください。
これだけの階数にどんなテナント様が入るのか、想像するだけでワクワクが広がります..!
空間としては、10階以上は水回り・トイレの配置は少しだけ異なります。
ただやはり、上階に上がるにつれて光の入り方はもちろん、景観も変わります..!これは圧巻です。

7名の固定席、3名分のフリーアドレス、8名用の会議室、リフレッシュルームが入ったレイアウト。
コンパクトな空間で使いやすいレイアウト。

6名の固定席、4名分のフリーアドレス、4名用、8名用の会議室が入ったレイアウト。
窓からの抜け感と働く人たちのスペースが確保されたレイアウト。

Normcore salon(ノームコアサロン)
~究極のシンプルなサロンスペース~
Normcoreとは「究極のシンプル」Normal(標準)とHardcore(ハードコア)の2つを足して作られたファッション造語。
ノームコアは、気取らないシンプルな服装を特徴としたユニセックスなファッショントレンド。
Syncs kojimachi Bldgもシンプルなコンクリート打ちっぱなし仕上げの空間に、ダクトレールが設置されている。
好きな家具を持ち込み、照明をつけて、究極のシンプルなサロンスペースとして空間を使って頂ける空間。
ほかの区画も合わせてチェックしてください!










