writers comment
学芸大学駅から徒歩9分、
少し遠いなと思いながら歩いていたが、そんな気持ちが吹っ飛ぶくらい素敵な物件を取材して参りました。
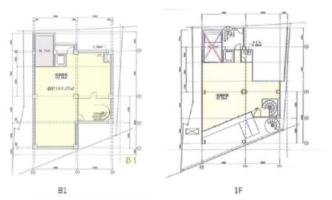
今回ご紹介するのは、B1階と1階のメゾネットのフロア。
目黒通りに面しており、前面ガラス張りときたら目立つこと間違いなし。
日当たりも良さそうな真っ白のスケルトン、しかも天高3.3m。
これはスタジオやショールームに推せる。地下への階段は螺旋状で、ここも素敵。
1階に比べ広々としたB1階は大規模な事務所に向いているだろう。
全体的に爽やかな雰囲気で、きっと多くの人が集う場になるだろう。
スケルトンチーム一押しの集いの場、ぜひご賞味ください。※3階はトランクルーム、4階はオーナーの住居です。
DATA
物件名:池田ビル
所在地:東京都目黒区鷹番1-4-4
最寄駅:学芸大学駅 徒歩10分
賃料:198万
面積:408.38㎡
所在階:地下1階〜2階
原状回復:相談
保証金:130万
礼金:2ヶ月
償却:26万
更新料:新賃料1ヶ月
条件:
設備:空調、エレベーター、トイレ、駐車場(1台)
築年:1989年3月
保険:加入要
構造規模:鉄骨造地下1階地上4階建
契約内容:普通賃貸借契約3年
備考:
情報掲載社:株式会社しんか
取引様態:仲介
最終確認日:2023年月7日7日
No.TYO-23-23-27
▶︎ご利用用途
事務所利用:可
美容室:相談
サロン:相談
スタジオ:相談
物販:相談
飲食:不可













