writers comment
千代田区立麹町小学校の前に佇むビルの一室。ビルの一階には雰囲気の良いカフェがある。窓がたくさん設けられているため、室内には太陽の光が差し込む。窓から見える緑と、外から聞こえてくる子どもたちの元気な声は、居るだけで心を和ませてくれる。ドアや照明の可愛いらしさが特徴的で、全体的に暖かい雰囲気の物件である。個室が二部屋あり、事務所はもちろんのこと、スタジオや物販店など、幅広い用途で使用できる。こんな場所で仕事できたら、ストレスフリーに伸び伸び働けそうですね。
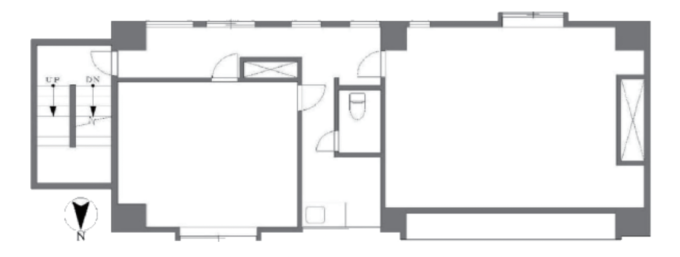
DATA
物件名:Cooee麹町ビル
所在地:東京都千代田区麹町3-10-8
最寄駅:麹町 3分、半蔵門 3分
賃料:–
管理費:無し
面積:58.31㎡
階層可能範囲:3階
原状回復:要相談
敷金:3ヶ月
礼金:1ヶ月
償却:無し
条件:無し
設備:トイレ、エアコン、シンク
築年:1980年
保険:要加入
構造規模:鉄筋コンクリート造 地上5階建
契約内容:普通賃貸借契約2年
備考:シャワー施設は貸主負担で設置可能(要相談)
情報掲載社:株式会社しんか
取引様態:仲介
最終確認日:2023年5月16日
No:TYO-23-16-1
▶︎ご利用用途
事務所利用:可
美容室:ご相談
サロン:可
スタジオ:ご相談
物販:可
軽飲食:不可













