御徒町|1502㎡|550万
募集中

【成約済み】天井高6.5メートル超の秘密基地

募集中

最終確認日:

 
JR山手線御徒町駅から徒歩2分。今回募集区画は人気百貨店松坂屋目の前の物件。東京の人気スポットアメ横が直ぐ近くにあり、観光客など多くの人で賑わう場所だ。
 
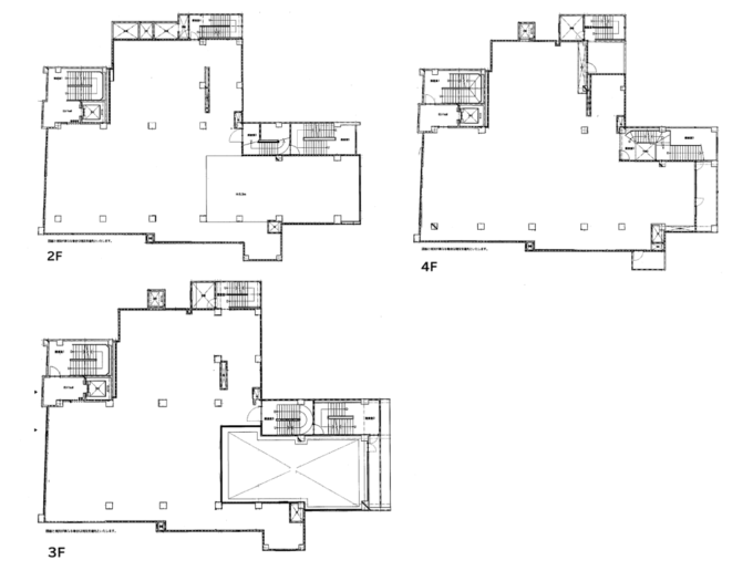
元サウナ施設をスケルトンにしており、先ず驚くのが圧巻の天井の高さだ!!
2階と3階は吹き抜けになっており立体的に空間を使う事が出来る。
まるで秘密基地のようなワクワクする場所だ。
 
個人的な推しポイントはやはり天井の高さだ。オフィスの中にロッククライミングが出来てしまう程である。
名店揃いの上野アメ横商店街が直ぐ近くにあり、毎日のランチが楽しみだ!

▶︎ご利用用途

事務所利用:可

美容室:可

サロン:可

スタジオ:可

物販:可

 
 
 

お気軽にご相談ください

オフィスの移転についてのお困り事ございましたら、是非ご相談ください。
御社のご希望を叶える物件をご提案。サイト未掲載物件も、ご紹介可能です

不動産業者様からの空室のお問い合わせは、お受けしておりません。
不動産業者様からの空室のお問い合わせは、お受けしておりません。

DATA

最寄り駅

賃 料(税込)

面 積

所在階

用途

特徴

賃貸条件

敷金・保証金

償 却

更新料/再契約料

契約期間

物件概要

住 所

構造規模

築 年

保 険

No

INFO

最終確認日

掲載会社

株式会社しんか

取引様態

物件検索