writers comment
北参道駅から徒歩4分、一際クリエイティブな雰囲気を醸し出しているビル一棟が今回ご紹介する物件だ。
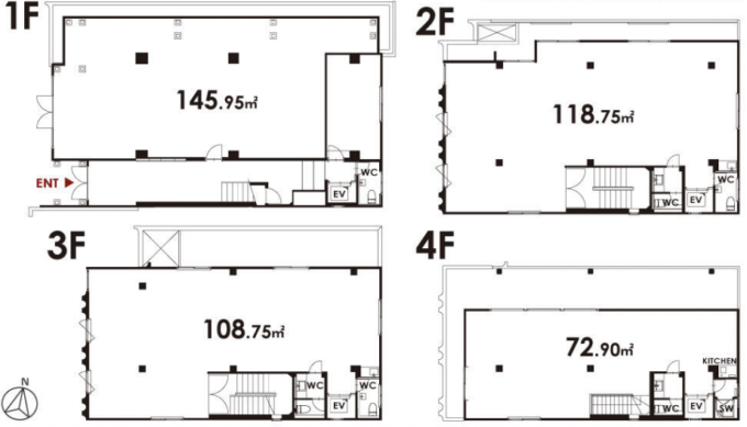
1階部分は道路からも室内の様子がうかがえるので、視認性抜群だ。これはショールームや店舗として大活躍の予感。2階、3階、4階は、バルコニー付きの広々空間。バルコニーを開け放てば良い風が入ってくるだろう。
全ての階にトイレとミニキッチンがついており、4階に関してはシャワールームも完備されている。
オフィスやSOHOとして使用するのが良さそう。白い壁とコンクリ剥き出しが良い塩梅で、これぞクリエイティブ。こういう空間を撮影していると、ワクワク出来て嬉しい。そしてなんとこのOMB KITASANDOビル、ビル名を変更出来るそう。1棟貸しのネイミングライツ
ここに入居した暁には、真のオンリーワンな空間作りがあなたを待っています。存分に個性を魅せびらかしてください。
※写真1-2枚目 1階、3枚目 2階、4枚目 3階、5枚目 4階
DATA
物件名:OMB KITASANDO
所在地:東京都千駄ヶ谷3-8-7
最寄駅:北参道駅 徒歩4分、原宿駅 徒歩9分、代々木駅 徒歩9分、千駄ヶ谷駅 徒歩12分
賃料:385万
共益費:なし
面積:446.35㎡
所在階:1.2.3.4階
原状回復:相談
保証金:5.1ヶ月
礼金:なし
償却:1.1ヶ月
更新料:新賃料の1.1ヶ月
条件:3年間解約不可
設備:エレベーター、空調、トイレ、ミニキッチン、シャワー、ライティングレール
築年:1983年2月
保険:加入要
構造規模:鉄骨造地上4階建
契約内容:定期建物賃貸借契約3年
備考:別途個別契約:電気、水道、インターネット、ゴミ処理費用等
情報掲載社:株式会社しんか
取引様態:仲介
最終確認日:2023年月7日4日
No.TYO-23-10-156
▶︎ご利用用途
事務所利用:可
美容室:相談
サロン:相談
スタジオ:可
物販:可能
飲食:相談













