writers comment
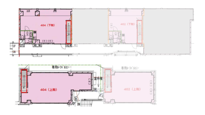
=4/5Fのメゾネット区画が募集中=
代々木上原駅から徒歩1分の場所に、職・住・遊の融合をコンセプトとした複合施設CABO Uehara。
1階には向かいの建物に入居していた人気のカフェ&バー『No.』が移転しています。なんと入居者は10%OFFで飲食することができちゃいます。建物の脇にはケバブショップや本屋さんなどが入居予定で盛り上がること間違いなし。上原の話題のスポットになりつつあります。
今回取材したのは事務所・住居区画である3階の一部屋と、事務所・店舗区画である4-5階メゾネットの区画。
コンクリートが使われているので一見無機質さはあるものの、所々の木目が柔らかさを出してくれています。腰かけられるスペースが何とも気持ちよさそう・・ここにクッションを並べてお昼寝したいです。働く上ではそういう、人を癒す柔らかさも必要だったりしますよね。そして、部屋を飛び出した外にある、他業種とのコミュニケーションも大きな付加価値になります。
屋上は決して広々した空間というわけではないのですが、新宿方面を一望できる気持ちいい場所です。武藤の大好きなドコモタワーも見えます。天気の良いお昼間はもちろんですが、夜景も圧巻な気がします。見てみたい・・!
感性が目覚めるような出会いが、この場で生まれるはず。メゾネットオフィスって素敵ですよね。
内見したら、ぜひここで働きたい気持ちになります。
DATA
所在地:東京都渋谷区上原1丁目
最寄駅:代々木上原駅 徒歩1分
賃料:401 82.5万
面積:401 96.25㎡
階層可能範囲:4-5階
原状回復:要相談
敷金:3ヶ月
償却:なし
更新料:なし
条件:
設備:トイレ、キッチン、バス
築年:2023年3月
保険:加入要
構造規模:鉄筋コンクリート造地上5階建
契約内容:定期借家契約5年
備考:401=4/5Fメゾネット区画
情報掲載社:株式会社しんか
取引様態:仲介
最終確認日:2024年12月16日
No.TYO-23-10-153










