writers comment
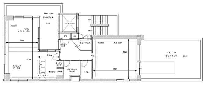
代々木駅東口から徒歩4分。新宿も徒歩圏内。明治通りから1本入ったところに建つ5階建ビルの最上階。もともとオーナーさんが運営していたレンタルスタジオで、フィッティング/メイルルーム、2つの部屋にはそれぞれ大きなバルコニー付きで、THE・スタジオ仕様です。ステンレス製の大型キッチンも完備されており、スチールだけでなくドラマやCM撮影も入っていたんだとか。2021年リノベーション済の真新しいスタジオです。バルコニーは東・北向きのため直射日光は午前中のみとなりそうですが、2つの部屋には天窓もついていました。そのまま稼働できそうな完成形です。
DATA
物件名:Pare Juno(パレ・ジュノ)
所在地:東京都渋谷区千駄ヶ谷5-16-6
最寄駅:代々木駅 徒歩4分
賃料:77万
共益費:77,000円
面積:約120.00m²
階層可能範囲:5階
原状回復:要相談
敷金:6ヶ月
礼金:1ヶ月
償却:解約時2ヶ月(別途消費税)
更新料:新賃料1ヶ月分(別途消費税)
条件:
設備:エアコン、トイレ、キッチン
築年:1991年
保険:加入要
構造規模:鉄筋コンクリート造地上5階建
契約内容:普通借家契約契約5年
備考:駐車場相談可能、スタジオ居抜き(要相談)
情報掲載社:株式会社しんか
取引様態:仲介
最終確認日:2023年6月6日
No.TYO-23-10-146
▶︎ご利用用途
事務所利用:可
美容室:相談
サロン:相談
スタジオ:可
物販:相談













