writers comment
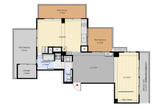
原宿駅から9分、今回ご紹介するのはヴィンテージマンションの一室だ。11階建ての最上階住戸で居住用として利用できるのは勿論、事務所利用やSOHO利用も可能だ。ペットが飼育できるのも嬉しいポイントである。内装はコンクリート剝き出しの無骨なデザインであるが、窓ガラスなどは複層ガラスに変更するなど生活環境にも配慮されている。


原宿駅から9分、今回ご紹介するのはヴィンテージマンションの一室だ。11階建ての最上階住戸で居住用として利用できるのは勿論、事務所利用やSOHO利用も可能だ。ペットが飼育できるのも嬉しいポイントである。内装はコンクリート剝き出しの無骨なデザインであるが、窓ガラスなどは複層ガラスに変更するなど生活環境にも配慮されている。