2021年に竣工した築浅物件
外苑前から徒歩7分、表参道から徒歩8分とちょうど駅の間にあるアクセスバッチリの物件。
歩いて物件に向かいましたが、高層ビルの竣工中だったり、都市開発がどんどん進んでいる人気のエリアです。
大通りから少し中に入った秘密基地の様な物件を紹介致します。
空間全てが上品!!
2021年に竣工されたばかりのまだ新築さがしっかりと残った上品なスケルトン物件です。
エレベーターからダイレクトインなこちら、空間全体が上品、、!と呟きたくなる雰囲気。
東南向きの大きな開口からは直射とまでは言わない、やわらかい日が入ってきます。
壁はシンプルな白塗装、天井と床は躯体現しのきれいなスケルトン。天井高は最大3.4mあるため、さらに広く感じられます。この高さを生かしてミーティングスペースを新設するなど、入られる会社様らしい空間スペースを作り出せるのがうれしいポイント。ライティングレールもライトもそのまま引き渡されます。
天井の配管をきれいに繋げて巻きつけておくためでしょうか、はしごのようなものが取り付けられているのが印象的でした。
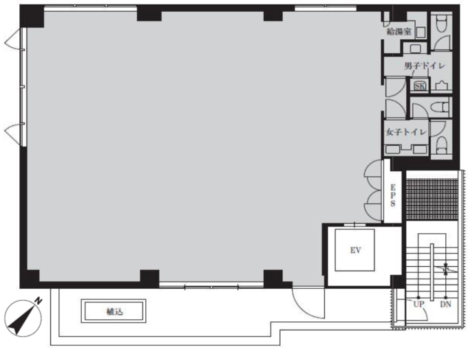
男女別トイレや給湯室が完備されており、すぐにでも入居できる状態です!
1階にはフレンチレストラン、2階には会員制のサウナがあるなんとも南青山らしい上品なテナント揃い!
縁起の良い物件
水回りは、現状のままだとトイレ側から室内へ引っ張る必要があるようで、美容室などはあまり現実的ではなさそうです。サロンやピラティスなどのサービス店舗、スタジオやショールーム、あとは事務所などの使い方がおすすめ。
前テナント様は寝具ブランドを提供する会社様の事務所兼ショールームとして使われていたようです。
この大きさも手狭となり、さらなる事業拡大のためお引越しをされたんだとか。何だか縁起のいい物件な気がしませんか?
ライターコメント
建物の前には小さな公園があり、私が帰社する時に多くの子ども達(幼稚園生かな?)が先生と一緒に訪れて遊んでいました。物件周りの治安の良さを感じられますね!
大きな通りから少し奥まったところへ入るからこそ得られる、
辿り着くまでのワクワクやドキドキ感が存分に味わえる隠れ家的な場所で、暮らすように働いてみませんか?











