銀座線外苑前駅から徒歩5分。
南青山の路地裏に佇むオフィスビルの中に実は、とてもスタイリッシュな物件が。
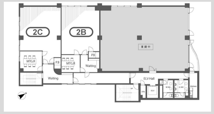
今回は隣り合う2つの区画を一挙にご紹介いたします。
オシャレにリノベ
外観はシンプルなオフィスビル。
エレベーターで2階に上がり扉を開けると、ふわっと新築の香りが…!(※こちらの物件は新築ではございません。)実はこちら2025年11月に内装リノベーションがあり、清潔感あふれるお部屋に。
新しいお家やお部屋に入ると感じるあの香り、お好きな方もいらっしゃるのでは?
思わず「わぁ」と口から溢れてしまいました….。
トレンド感ある内装
お部屋へと続く扉を開けるとまず目に入るのがウェイティングルーム。
こちらはメインルームとミーティングルームに繋がっています。ここにはベンチまで備え付け。
来客があるような場合でも、スムーズにミーティングルームへご案内できそう…と早くも想像が膨らみます。
メインルームはというと、ライティングレールとスポットライトというなんともトレンド感あるデザイン…!
まるで「あなたが主役」と言わんばかり。
各部屋へとつながる扉も清潔感あるホワイトで統一されているのですが、一際目立つブラウン基調の扉が1枚。なんと扉の向こうはフォーンブース。
デスクや資料室として利用しても良さそうなこぢんまりとした個室空間です。アレンジが効きそう。
素敵空間で広がる想像
スポットライトや扉だけでなくライトのスイッチにまでデザインにこだわりが感じられるんです。
ライトスイッチのシルバーで無駄のないフォルムに、真っ白な左右対称の扉も見ていて気持ちがいい。
さらに見た目の綺麗さだけでなく、お部屋の多さも魅力の一つ。
オフィスとしても色々な使い方ができそうでワクワク。
この素敵空間をどのようにアレンジするか、想像してみませんか?
それぞれの個性
「隣あう2つの区画」と初めにご紹介しましたが、同じフロアのお隣同士に位置しているためデザインはほとんど同じ。それでもどこか違う……それぞれ個性があるようです。
広さやレイアウトはもちろん大きな違いの一つですが、光の差し込み方にも違いが。
一方のお部屋は日中ライトをつけなくても明るさが十分にあり窓にはブラインドも。
お好みに合わせて2区画実際に見比べてみるのも面白いかも。
ライターコメント
今回は欲張りなことに一度に2つの区画をご紹介してしまいました…笑
デザインは統一されているのにそれぞれの区画で異なる個性があり、2区画まとめて利用しても、1区画のみでもそれぞれに合わせた用途やレイアウトなどイメージが湧いてきました。
私のイチオシはライトスイッチです。デザイン性もあり、少し珍しくもあり「カチッ」というあの感覚も気持ちがいいです。まだまだきっと見つけきれないこだわりポイントがあるはず。
ぜひ一度見つけに行ってみてください。










