writers comment
麹町と半蔵門の間。両駅から3分ほどの立地だ。
周辺にはこのエリアらしいオフィスビルが立ち並び、お昼になるとご飯を求め多くの人が飲食店に列を成す。
今回ご紹介する物件の一階部分にはお弁当屋さんとハンコ屋さんが入居中。
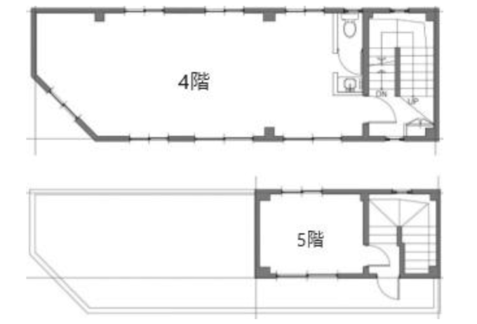
現在3-5階が空室となっている。4-5F区画は屋上も利用できる。
室内は日当たりが良く明るい空間となっているオフィス街でランチ屋さん。
DATA
物件名:酒井ビル
所在地:東京都千代田区麹町3-1-8
最寄駅:麹町 2分、半蔵門 3分
賃料:29.26万
共益費:無し
面積:44.02㎡
原状回復:要相談
階層可能範囲:4-5階(屋上)
敷金:2ヶ月
礼金:1ヶ月
償却:無し
更新料:新賃料1ヶ月
条件:
設備:トイレ
築年:1983年
保険:要加入
構造規模:鉄骨造5階建
契約内容:定期借家契約2年
備考:
情報掲載社:株式会社しんか
取引様態:仲介
最終確認日:2024年月9日17日
No.TYO-23-16-2
▶︎ご利用用途
事務所利用:可
美容室:不可
サロン:ご相談
スタジオ:ご相談
物販:可
飲食:可












