writers comment
今回は渋谷を飛び出して、今も昔も東京を代表する観光スポット「アメ横」の「御徒町駅」にやってきました。
JR山手線 御徒町駅から徒歩10分。春日通りをまっすぐ歩いて、清洲橋通りとクロスする元浅草1丁目交差点からの先に立地するオフィスビル。最寄駅は新御徒町駅で徒歩2分です。
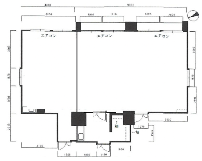
今回ご紹介するのは小部屋と大部屋の2区画セットの募集です。はるばるやってきた甲斐がありました、見てくださいこの無機質な冷たいコンクリ空間(褒めてます)。大きい部屋はもともとは梁下で2つのお部屋に分かれていたようですが、壁をぶち抜いてフラットなワンルーム空間になっています。そのため入り口が二つありレイアウトの導線確保もしやすい形。
天井は抜けてスケルトン天井に。天高は2.9mもありました。黒いライティングレールが2本ずつ走っていて、壁は白塗装。床は躯体剥き出しにクリア塗装。トイレは男女別のが共有部にあり室内をまるっと使えます。これぞそのままの空間でオフィス移転ができてしまう「THE」王道スケルトンオフィスですね。
小さい部屋へは室内で繋がっておらず一度共用の廊下に出て、隣の区画へ。会議室として分けてもよし、休憩室や大きいストックルームなんかにしても良さそうです。こちらは15坪ほどあり、どんな用途も万能に使えちゃいますし、3部屋ぶち抜きより、ここが個室で独立しているのは使い勝手が逆に良いかと思います。
事務所のほか、ショールーム兼、スタジオ兼といった使い方も良さそうですが、窓からの日当たりはほぼなしです。
下町情緒あふれる商店街もほど近くにあり、浅草橋や蔵前、浅草エリアに囲まれた静かなるおしゃれ開拓地です。










