道玄坂の終着点
道玄坂上交差点の手前にあるビルの4階部分のハーフスケルトンの物件をご紹介します。
渋谷マークシティをぬけて歩いていると現れる、大きな板チョコのようなビルです。
渋谷駅からは徒歩6分。すぐ近くにはバス停(道玄坂上)もあり立地は申し分ありません。
ハーフスケルトンと六角形
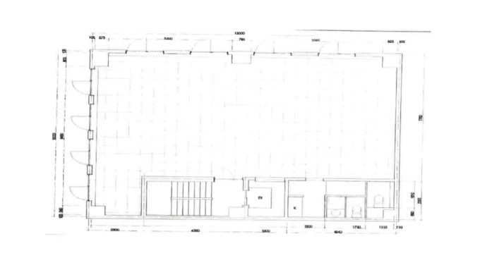
125㎡の広々空間の中に存在感を放つのは、六角形の窓。
六角形の窓が2面に、8つ並んでいます。
こちらは開けることもでき、窓としての機能もしっかり果たしてくれます。
8つもあるので戸締りには注意が必要です。
この広々空間に、六角形の窓とスケルトンのマッチはとても雰囲気のある空間になっていました。
窓の外から見えるガラス越しの姿もきっと絵になるでしょう。
今回、水回りをフルリフォームしてあり新品です。
こちらの物件の内装は基本自由にできるので、業種の縛りは特にありません。
ただ重飲食のみ不可となっています。軽飲食は可です。
天井高も3mあり、スタジオなどの利用もできそうです。
この広さと天井高を活かしたフィットネスも。
どんな用途にもおすすめな物件です!
ライターコメント
オーナーさんが馬主ということで、ビルの1.2階の窓は馬の蹄になっていました。
内装の窓とスケルトンももちろん素敵なんですが、
外観もお馬さんカラーで、窓と相まって板チョコのような姿でとてもワクワクしました。
遊び心あるビル。とても素敵でした。










