1階に人気の「アイムドーナツ」が入っているビル。募集区画は2階3階と5階です。2階3階は現況のオフィス仕様になっており、天井はスケルトン・白壁・床は絨毯が整っていました。今回ご紹介するのは5階のスケルトン区画です。
2階3階の画像も一部ご紹介いたします。
コンクリートの味わい
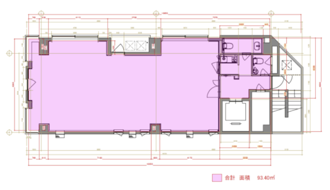
扉を開けた瞬間に広がるのは、90㎡超のワイドスケール。天井高は2,840mm。数字以上に伸びやかさを感じるのは、壁や天井を覆うざらりとしたコンクリートの質感が、空間の奥行きをつくっているのかなと思います。
「飲み込まれそうな迫力」と「静けさを纏う重厚感」が両方感じられて、この無骨な雰囲気に惹かれる方は多いのではないでしょうか。
窓からの光もしっかり
奥と横、二面に設けられたガラス窓からはしっかりと光が差し込みます。
午後に訪れたときも窓辺から光が入っており、コンクリートのグレーの色が優しい色に感じられました。
スケルトンを生かして
現状は前テナントの壁紙を剥がした跡がそのまま残っていますが、それもまた「素材感」として映ります。あえてラフな仕上げを残してインダストリアルな雰囲気を強調するのも良し。反対に、フルリノベーションで自分たちの世界観を描き切るのも良し。スケルトンだからこそ、クリエイティブに空間づくりをする楽しさが待っています。
ライターコメント
圧倒的なスケルトン空間と同じくらい印象的だったのが、立地の良さ。青山通り沿いというアドレス感と、渋谷駅・表参道駅の両方が使える利便性。撮影帰りには1階のアイムドーナツでお土産をつい買ってしまいましたが、オフィスや店舗として利用したときに「お客様を案内しやすい」立地であることも大きな魅力です。無骨さと洗練さを持っている、渋谷らしいスケルトン区画だと思いました。










