駅近の1棟建て
用賀駅から徒歩2分の新築1棟貸しの物件。
駅周りはとても綺麗に整備されており、周りにはカフェやベーカリーもあるおしゃれな街並み。
ファミリー層に人気の落ち着いた環境にある物件を紹介します。
スケルトン3フロア
用賀駅向かいの通路を突き進むと見えてくる一棟貸しの新築スケルトン。
道路から道を一本中に進んでいくと、L字型になった建物が来訪者をお迎えしてくれてるような可愛らしい外観。
入り口を開けるとすぐ階段があり、その横には部屋への入り口のドアがあります。
全フロアはドアで仕切られておりますので音漏れの心配はありませんね。
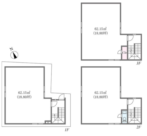
中は広さは18坪の広々とした空間が広がります。天高は3mもあり、モノトーンでコンクリート打ちっぱなしが魅力的です!
現在は1階のみトイレがありますが、他のフロアにも増築可能なスペースが用意されているので、ご自身の用途に合わせて作ることができます。
用賀には「世田谷ビジネススクエア」があり、多くのオフィスや銀行、飲食店が集結しています。
商談やランチミーティングの利便性が高いです。
渋谷や都心のアクセスも良し、世田谷というブランドイメージのある落ち着いた働きやすい環境が整っています。
オフィスや飲食店も
こちらの物件は飲食店も可能なので、飲食店と事務所を兼ね備えた店舗にすることもできます。
比較的いろんな業種にも対応できそうなので、ご相談ください!
レイアウトとデザインの自由度が高いのがグッドポイントですよね!
ライターコメント
用賀には私の好きなコーヒー屋さんがあるのでたまにコーヒーを飲みに行ったりするほど、お気に入りの街なんです。
人通りが多く無いので、都会での生活からリフレッシュできる街並み。
ファミリー層が多いので治安が良いのも魅力の一つですよね!!
用賀の閑静な街並みで自分好みの職場作ってみませんか?











