JR目黒駅より徒歩9分。都道418号沿いに建つ、一棟リノベーション物件のご紹介です。
2025年にフルリノベーションが施され、エレベーターも新設。建物全体が、みんなに愛されるような建物に生まれ変われました。
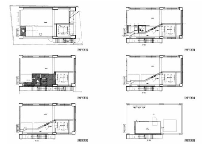
何階がお好み?
1階から5階、そして屋上まで。この建物の面白さは、各階ごとに少しずつ性格が違うことにあります。
フロアごとに広さや天井高が微妙に異なり、基本は白壁+天井を抜いた開放的な空間構成。3階だけは、グレー面積が広めのスケルトン仕上げになっており、同じ建物の中でも、がらりと印象が変わります。パントリーの位置や、1・2・4階にそれぞれトイレが設置されている点も、フロアごとの使い方を自然と分けてくれそう。
「どの階を、何に使おうか」と考え始めると、少し楽しくなってくる建物です。
屋上のおまけ
5階からさらに階段を上がると、屋上へ。そこには、ちょっと意外な“おまけ”のような小部屋が付いています。広さは6〜8畳ほど。フローリング仕上げで、空調も完備。簡単な休憩はもちろん、ストックルームとして使うのも良さそうです。せっかくなら、スタッフが一息つける場所や、気分を切り替えるための小さな居場所にしても良いかもしれません。
曇りの日でもあかるい
撮影日はあいにくの曇り空でしたが、2面採光、フロアによっては3面採光ということもあり、
室内は想像以上に明るい印象を受けました。特に1階は天井高が約3,000mmと一番の開放感。ショールームやギャラリー、撮影スタジオとしても建物スペックの高さを活かせそうです。
ライターコメント
紙面で見た瞬間、「これは一度現地を見たい」と思った物件でした。一棟貸しのため賃料はそれなりですが、
自分たちの会社の“拠点”として建物を持ちたい方には、しっくりくる選択肢かもしれません。屋上付きで、各階の表情が異なる点。社員のモチベーションを上げたい方、空間づくりも含めて企業カルチャーを育てていきたい方に向いていそうです。駅からは9分と少し歩きますが、大通り沿いで飲食店も多く、日常の楽しみも見つけやすい立地。リノベーションされたこの建物で、新しい働き方と、新しい空気感をつくってみるのも面白そうです。










