自由ヶ丘駅から離れた一棟建て
自由ヶ丘駅から徒歩18分と駅から少し離れたフルスケルトンの物件です。
駅前には新しい建物の建設をしていたりとこれから益々盛り上がる町「自由ヶ丘」。
物件に向かって歩いてる道中にも、カフェやレストラン、ペットサロンなどの様々な業種が建ち並ぶおしゃれなエリアの物件紹介です。
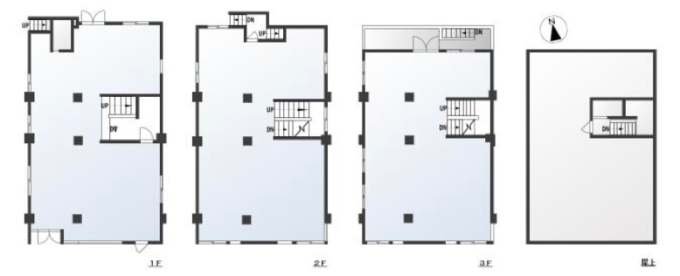
3階建の屋上付き
今回はなんと1階から3階まで全てフルスケルトン、使用面積は400㎡越えです。
両開きの扉が道路沿いにあり、駐車スペースも無料で完備されているので運搬の多い業者様にうってつけの物件ですね。
中に入ると一面全てコンクリートのフルスケルトンのシックな色合いが目の前に広がります。
この物件のオススメポイントとして、入り口に大きなガラスがあることで自然光が建物に入ってきてコンクリートのダークトーンと合わさることで落ち着いた空間をつくりあげてくれます。
建物の中央には階段があり、この階段をベースに左右で分けての利用もできると思います。
2階と3階も同様にコンクリート打ちっぱなしの建物、天高は最大3mもあり、何をするにも申し分のない高さ。
少し気になるところとしては、所々に穴が空いている場所があります。
トイレなどの設備も無い状態なので、借りる際はトイレの設置をお願いする形となります。
ですが、自分好みの内装を作り上げることができるのはフルスケルトンの特権ですね!!
裏手側にも入り口と3階まで階段があるので、大きな荷物があっても運搬等を裏口で完結することができますね。
屋上には自由ヶ丘を見渡すことのできる屋上があります。
仕事で疲れて息抜きをしたい時、綺麗な街並みを見下ろしながらリラックスしてみてはいかがですか?
オフィスやショールーム、運搬業にも良さそう
フルスケルトンの設計により、自由なレイアウトが可能です。オープンなワークスペースや、個別の会議室、ショールームエリアなど、ビジネスニーズに合わせた空間を自由自在に実現です
モノトーンで洗練されたデザインの内装は、訪れるお客様に良い印象を与えます。ショールームとしても利用できるため、商品やサービスを効果的にアピールできます。
以前は運搬業の業態が入っていたので倉庫としての利用可能な広いスペースを備えており、運搬業務に必要な設備を整えることができます。商品の保管や管理にも最適です。
ライターコメント
自由ヶ丘は洗練されたカフェやブティック、雑貨店が立ち並ぶおしゃれな街です。都心の喧騒から少し離れた場所に位置しているため、比較的静かで落ち着いた雰囲気があります。公園や緑地も多く、リラックスできる環境が整ってました。
そんな街並みの中で自分のライフスタイルや好みに合わせてフルスケルトンから作ってみませんか?











