恵比寿駅徒歩5分、まーっすぐ歩いていけば到着です。
駅から近いのですが駅前の人混みは無くなり、かなり落ち着いたエリア。裏道の入口にある物件です。
外と中のギャップ
黒の大判タイルがシックで大人な印象の外観。
ですが中はびっくり落ち着いたウッドスタイル。清潔感100点満点です。
丸くカーブした玄関スペースが可愛い。
玄関を入ると、まず目に入る小さなカウンター。
来客時の受付やウェルカムスペースとして使えそうなポイントです。
ぽつんと電球がついていることで、より空間のおしゃれ度が上がりますね↑
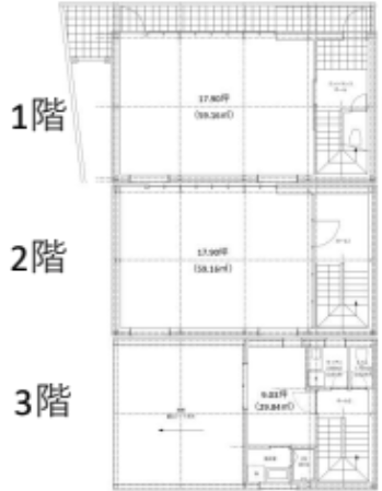
3フロアどう使う?
1F~3Fの1棟物件。フロアごとに全然雰囲気が違います。
1Fは木目と白で統一された空間。入口扉は自動ドアです。なんだか自動ドアなだけで、高級感というか
きちんと感を感じました。
外観から見た通り、前面ガラス張りなので室内にもお日様が入り込み、気持ちが良いです。
下部は目隠しフィルムが貼られているため、外からの視線も気になりません。
奥にはホワイトボードがついていて、今週のチームでのタスクとか会議内容とかメモできます◎
目標が目に見えるところに書かれていると、チームの士気も上がりそう。
2Fは1Fと打って変わって、黒と白で統一されていました。
こちらは目隠しフィルムがない分、1Fよりももっと明るかったです。
半透明の扉から見える階段のシルエットが可愛い。
なんと廊下にもエアコンがついているんです。ありがとうポイント!
これで冬でも夏でも、どこにいても快適です。
3Fはとてもコンパクト空間。シャワールームと洗濯機置き場がついていました。
給湯室とお手洗いも。
1F2Fを店舗として使用するなら、3Fは休憩室みたいに使用できそうですね。
サロンやクリニックだったら洗濯もできるし便利。
用途は、事務所も店舗(飲食不可)もご相談可能です。
事務所だったら、会議室と執務としてフロアを分けたり、部署ごとに分けたり自分たちの好きなように
使い方を考えることができます。
収納棚も各フロアについているので、あとは必要な分のデスクやお気に入りの家具を入れるだけ。
恵比寿で、夢の自社ビル。そんな選択、ありかもしれません。
ライターコメント
恵比寿の町ってなんだか好きで、きっとそう感じている人も多いんじゃないかなと思います。
駅前はたくさんの人で賑わっているけれど、四方八方に素敵なお店が広がっていて、
それぞれが好きな場所へ向かっていく街。だからこそ、行き着いた先ではゆっくり過ごせる気がするんです。
そんな恵比寿で、1棟の場所を持つということ。ちょっとした夢のような話かもしれません。










