渋谷駅の好立地に、今っぽい働き方ができるオフィスができました。
~渋谷道玄坂“自分たちの場所”を持つ~
シェアオフィスやコワーキングスペースは、創業初期のスモールチームにとって最適な選択肢です。
あるタイミングでこう感じることはないでしょうか?
会議室の空きがない
商談中に他社の声が気になる
チームで使うには手狭になってきた
「仮のオフィス」感を払拭できない
そして何より、「自分たちの拠点を持ちたい」という想い。
それは、チームの成長や信頼性、採用活動を加速させる第一歩です。
渋谷・道玄坂に誕生した
“ちょうどいい”オフィス「Fitto Office(フィットオフィス)」は、
そんな“シェアオフィス卒業フェーズ”に差し掛かった企業のために生まれた、
PCだけ持ち込めばすぐに働けるセットアップオフィスです。
家具を持たない企業には、嬉しい家具がすべて揃っているセットアップオフィス。

(物件概要)
渋谷駅徒歩圏内の好立地(道玄坂)
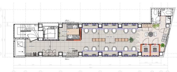
最大12~23名まで対応可能なワークスペース
WEB会議ブース×2、個室会議室×1
男女別トイレ、デスク・チェア完備
ANSHI TOUCH(デジタルホワイトボード)標準搭載
まさに、すぐに働けるオフィス。
“スケルトンオフィス東京”がご紹介する物件の中でも、
「シェアオフィスを卒業したい」「支店を持ちたい」という方に最適なレイアウト。
今っぽい働き方であるリモートと出社の“ちょうどいい”ハイブリットな働き方
リモートの方が置いてきぼり感がある状況を改善するために
一緒に働くが体験できるハイブリットな働き方をサポートする
デジタルホワイトボード「ANSHI TOUCH」を標準導入。
画面に直接書き込んだ内容を、
そのままオンライン参加者とリアルタイムで共有・編集できます。
誰かが出社しても、誰かがリモートでも。
わざわざ電話しなくでも現場の状況がわかり、呼びかけることで、一緒に働くが実現できる。
チームとしての一体感を維持できる、現代的なワークプレイスです。

あなたのチームの働き方に“ちょうどいいオフィス”に移転しませんか?
“ちゃんとした場所”が、会社の信頼を育てる
採用や営業先との打ち合わせで、「どんな場所で働いているか」は企業イメージに直結します。
「Fitto Office」は、デザイン性と機能性を兼ね備えた“見せられるオフィス”。
コワーキング、シェアオフィスでは叶わなかった、自社らしい空間と信頼感を手に入れることができます。
都内の成長企業のオフィスデザインを行っているデザイン会社監修で設計されているので
使っていて使いやすく、デザイン面だけではなく、使い勝手もよい仕様になっている。

セットアップオフィスは安い!実はほんとう!コストパフォーマンスがいい!
セットアップオフィスは月額92万でいうと少し高く見えてしまうかもしれませんが、
相場69万のオフィスを借りた場合と比べると、2年間のトータルの支払いは830万前後安くなります。
月額で均すともちろんセットアップオフィスの賃料よりも高くなってしまうんです。
費用だけではなく、工数から考えると
内装工事の打合せ、工事手配、工事期間の賃料など、一切なく、
退去時もクリーニング費用のみで完結してしまう。

業種に合わせたレイアウトプランをご用意
今回、2パターンのレイアウトをご用意しました。
1.コミュニケーションが多い企業向け
IT企業など来客が少ない企業向けのレイアウト。
簡単な打合せ、ランチ休憩などはファミレスブースが大人気なスポットになります。
来客スペースが奥にあるため、来客が多くある場合は不向きなレイアウトになります。
内容:12名用の席、WEB会議ブース2、4名用会議室、ファミレスブース

2.来客が多い企業向け
不特定多数の来客が多く、セキュリティーに気を遣う企業向けのレイアウト。
入ってすぐに会議室のご用意があるのでセキュリティーラインを確保することができます。
奥にWEB会議が2つ、立って打合せできるスペースのご用意があります。
内容:12名用の席、WEB会議ブース2、4名用会議室、スタンドミーティングスペース

働くスタイル、オフィス環境は各企業の考え方によって様々なので、
好きなスタイルのレイアウトを選ぶことができます。
気に入ったレイアウトがなかったあなたへ
【YOUのオフィス作っちゃおうよ!区画】*貸主負担工事
セットアップオフィス仕様の工事をしていない区画もございます。
こちらに関しては御社に希望に合わせてセットアップオフィスを作ることができます。
レイアウト変更により16~23席まで拡張のご相談ができますし、
オフィスの雰囲気の変更も含めてご相談ができます。
もちろん貸主負担で内装工事を行います。
18席 WEBブース1・打合せブース2・会議室1

23席 WEBブース1・会議室1

本物件「Fitto Office」にご興味のある方は、お気軽にお問合せください。
ご希望に応じて内見のご案内や、類似物件のご紹介も可能です。
今回、初期費用をなるべく抑えるためにキャンペーン中。
内装が出来上がっているオフィスに入居すればすぐ使えるだけではなく、
敷金0、礼金0、償却0。
またキャンペーン中でフリーレント3ヶ月(水道光熱費のみ発生)。
*保証会社利用料(賃料の1か月分)、クリーニング費用1か月分、契約時に前家賃3か月分支払い。
4フロアのモデルルーム完成。
契約したら1ヶ月程度で内装工事完成させるスケジュールになっておりますので
希望の区画を決めて、契約をしたら、内装工事をスタートさせます。
10月末まで平日10-18時でオープンルームを開催しておりますので、
もしよかったら遊びに来てください。
今っぽい働き方ができるオフィス Fitto Office 特集ページ











