恵比寿一丁目のオフィス街
恵比寿駅から徒歩6分。
多くのオフィスが多々居並ぶ恵比寿一丁目の落ち着いたロケーションにある
新築メゾネットタイプのオフィスを紹介します。
デザイン溢れるメゾネット
洗練された都市機能と穏やかな環境を兼ね備えたこのエリアは、クライアントとの信頼関係を築く拠点として、また従業員の働きやすさを実現する場所として、高い評価を得られるポテンシャルを備えています。
今回は3つの区画で募集が出ております。
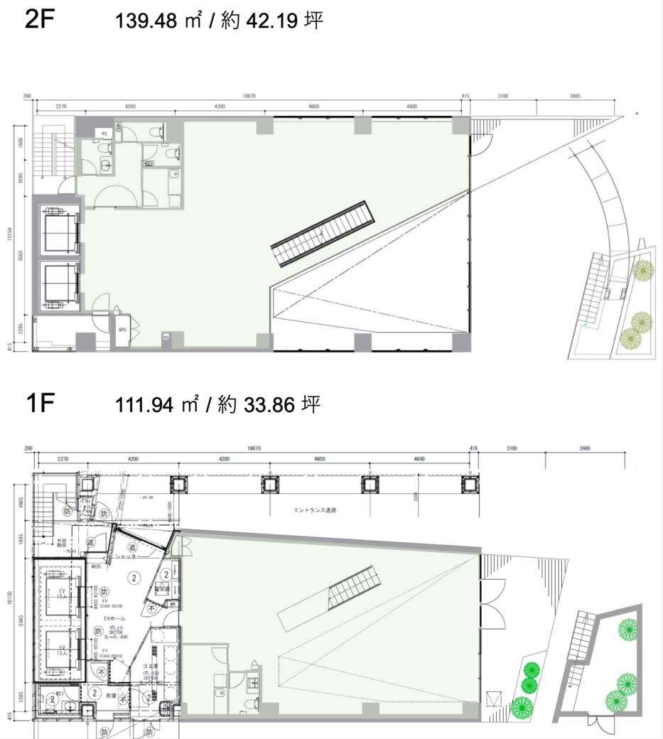
1~2階 251㎡ 330万
3〜4階 300㎡ 363万 会議室付き
5〜6階 300㎡ 363万
本物件の特長は、用途に応じた柔軟な空間設計にあります。1〜2階、3〜4階、5〜6階はそれぞれ上下階を内階段でつなぐメゾネット仕様となっており、執務スペースと応接・会議スペースのゾーニングがしやすく、空間に奥行きと機能性をもたらします。特に3〜4階は、内装工事による会議室が設置されており、来客対応や社内打合せの多い業態にも適した構成です。
7〜8階は既にデザイン関連の企業が申し込み済みであり、感度の高いテナントが集まるビルとしてのカラーが既に形成されつつあります。今後のテナント構成や相乗効果を見込んだご提案も可能です。
設備面では、個別空調、フロアセキュリティ付きエレベーター2基、専有部独立トイレ、防犯カメラ、夜間オートロック付きエントランスなど、新築ならではの充実した機能を完備。業種・業態を問わず、快適かつ安心してご利用いただける環境を整えています。
こちらの物件は、働く空間そのものが企業のブランドやビジョンを表現する場となることを想定し設計された、新しい価値提案型オフィスです。恵比寿という立地の魅力を最大限に活かしながら、入居企業の個性を引き立てる自由度の高い拠点として、ぜひご検討ください。
ショールーム付きのオフィスとして
本物件はオフィス利用となっておりますので恵比寿という立地を活かした
オフィス併設型のショールームにも適していると感じました。
ガラス張りの開放的なファサードは、商品やブランドの世界観をダイレクトに伝える場として効果的で、特にライフスタイル系・アパレル・デザイン事務所などとの親和性が高い空間です。
ライターコメント
朝の時間に撮影に行ったのですが、多くのビジネスマンの方々が歩いているのを見かけました。
他のエリアとは違って洗練された大人のビジネスエリアの雰囲気を感じました!
表参道や、代官山、中目黒などのトレンドエリアへもアクセス十分ですね!
そんな大人なオフィスにデザイン性のある物件でオフィスを構えてみませんか?











