原宿駅から程近くのリノベーションビル
北参道駅から徒歩4分。原宿と千駄ヶ谷のちょうど間に位置するオフィスビル。
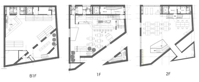
もともとはテキスタイル会社の自社ビルとして使われており、その後、建築家設計のもとフルリノベーションがされた建物です。今回はそんな建物の地下+1階、2階の居抜き区画をご紹介します。
パワースポットを一から
まず触れておきたいのが、そのアプローチ空間。
建物の一部分を渓谷の如くくり抜いたように作られたアプローチ空間は、2つの道路を結ぶ近道になっています。その間を通るだけで、その路地空間が持つ生命感というか、艶かしさがひしひしと伝わってきて、小さなパワースポットみたいです。今はその全体に人工芝が敷かれているため、より一層自然を感じさせられます。
現在は企画制作会社が入居されており、空間そのものの雰囲気と会社+複合施設の雰囲気をうまく掛け合わせて、一から内装を手がけられています。
地下はアプローチ空間の途中から階段を下った先にあります。
イベント・展示スペースが行える場として、造作はキッチンカウンターが造作されています。
メインとなるギャラリースペースの床はモルタルが敷かれているのと、階段手前の植物園には人工芝が敷かれています。なんとこちらの人工芝はFIFA認定工場で生産されたものなんだそう。1階のアプローチ空間も、同様の芝が使われています。
1階は飲食店、ショップ、外にはキッチンカーで構成されたオープンな空間。
こちらも地下同様オープンキッチンで、入ってくるお客様や社員の方を正面から迎え入れられるのがさりげないポイントです。
2階は、1階からメゾネットタイプで広がり、オフィスフロアとして使われています。
床がフローリング仕上げであることと、西陽がたっぷり入るため、堅苦しさのない温かみのある空間です。
渡り廊下を挟んだ向かい側には4名用程度のMTGスペースもあります。
造作譲渡無償+分割貸しもOK
テキスタイル会社から不動産再生を行う会社、そして今の企画制作会社。
今の状態の内装に仕上げるまでは、リノベーションされたとはいいつつ、一般的なオフィス仕様でした。
その仕様を今の状態にまで持っていくのに総額6,000万ほどかけられたと伺っています。フロアごとのコンセプトはもちろん、原宿という文化発信の街と、コアな企業が集まる千駄ヶ谷の中間地に溶け込んだこだわりの内装デザインは、見れば見るほど圧巻されます。
そんな内装造作は、基本的に無償で引き継いでいただけます。
個人的に大好きなアプローチ空間のみ、人工芝は剥がされてお引き渡し予定とのことですが、その他の家具についてはご相談もできます。ここまでの規模を、内装工事費用がほぼ0でいけちゃうのは、本当に、本当に魅力的。
今の状態を活かして、地下と1階はイベント+交流スペース、2階はオフィススペースとして使うのがおすすめです。
一括貸しはもちろんですが、フロアの分割貸しも相談できちゃいます。
B1Fのみ、1F+2Fなど、ご希望の広さによって選択できるのもいいですよね。
4月中の申込に限り、フリーレントのご相談も柔軟に受け付けてくださいます!ぜひこの機会をお見逃しなく。
ライターコメント
現入居者様のイベントで何度かお邪魔させていただいており、
その度にこんなにも居心地良く、存在感を放てる空間があるのだと感動しておりました。
この空間がこのままの状態で、気に入っていただけて、さらに自分色にバージョンアップしたい!と思う方に引き継いでもらいたいなと心から思います。
都会のオアシスのような、ふらっと立ち寄れる楽園のような、そんな皆さまの拠り所となる場所になりますように!
※募集終了











