writers comment
ブランドショップが立ち並ぶ神宮前2丁目の立地!
住宅街も入り混じる一角に、まだ築浅なデザイナーズ物件があります。
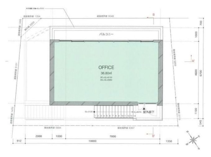
今回募集されている区画は3階のオフィス区画。エレベーターはないため外階段から登っていきます。
まさにエクセレンス!と言いたくなるような、外観の印象と室内の雰囲気がしっかりとマッチしているデザイナーズビル。室内はシックでありながら重たすぎない、コンクリート打ちっぱなしの仕上がりです。床はグレーというよりはベージュがかったモルタル仕上げになっているため、ほんわりとあたたかさがあります。幅2mほどの鏡と、その奥には洗面、棚が造作されていました。
北東向きのため日当たりは特別良いというわけではないのですが、室内一面が窓になっているため、雨の取材日でもまったくどんよりしていなかったです..!バルコニー付きなのがうれしいですよね。国立競技場と、その手前には墓地が見えました。気になる方は気になるかもですが・・。
基本的にオフィス募集ですが、店舗利用もご相談可能です!美容室はスペックが現状足りないため、ご相談はできますが現地調査が必要です。 撮影スタジオは、天井が意外に低めのため、そこがクリアになればご相談可能です。
1階はお鮨系の飲食、2階はまだオープン前なのか..?カフェのような空間が見られました。
デザイナーズビルの最上階、ぜひぜひお気軽にお問い合わせください!










